(询价编号:SBCX2015004)
询价内容:
通灌校区北实验三楼第四机房改造(具体内容见下表)
质保及服务要求:
要求正规渠道全新产品和规范施工,合同签订后15日内完工,质保1年。
材料质量事先要由学院负责老师确认后,才能施工。投标施工单位还须具有房屋建筑或建筑装饰施工三级及以上施工资质。
付款方式:
经我校验收合格后15个工作日一次付清。
报价方式及截止时间:
附件所列清单仅供参考,各报价人可于2015年3月18日16:30之前到我校进行现场勘察和尺寸测量,按询价单所附报价表格式进行报价,签填相应栏目并加盖单位公章密封后于2015年3月19日11:30前递交至淮海工学院设备与实验室管理处设备管理科,逾期报价无效。
所有材料、配件一次包清,材料符合国标要求,总价最终以学校审计价格为准。
询价方联系方式:
现场联系人:张老师13851290128
报价联系人:王老师 联系电话/传真:85895262
地址:连云港市海洲区苍梧路59号文渊楼213
| 通灌校区北实验三楼第四机房改造工程量清单 |
| 序号 |
项目名称 |
项目特征描述 |
单位 |
工程量 |
综合单价 |
合价 |
备注 |
| 1 |
计算机桌 |
见图要求 |
张 |
80 |
|
|
|
| 2 |
防静电活动地板安装费 |
只需安装 |
㎡ |
110 |
|
|
|
| 3 |
48口交换机 |
华为、中兴、TP-LINK等 |
台 |
2 |
|
|
|
| 4 |
挂壁式交换机箱 |
装2台交换机 |
台 |
1 |
|
|
|
| 5 |
网线 |
超五类 |
箱 |
5 |
|
|
|
| 6 |
水晶头 |
超五类 |
个 |
170 |
|
|
|
| 7 |
线管 |
国标,pvc直径25mm |
m |
100 |
|
|
|
| 8 |
封闭式网线槽 |
国标,Pvc,100mm*80mm |
m |
50 |
|
|
|
| 9 |
电缆线 |
国标220v,3芯2.5mm2电缆 |
m |
150 |
|
|
|
| 10 |
插座 |
明线盒明装,“德力西”10A 5孔插座 |
套 |
30 |
|
|
|
|
工程直接费 |
|
|
|
|
|
|
|
安全文明施工费 |
|
|
|
|
|
|
|
税金 |
|
|
|
|
|
|
|
合计 |
|
|
|
|
|
|
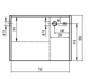
电脑桌
电脑桌说明:
1. 家具中所涉及到的板材,基材为刨花板,板面为三聚氰胺双面压光榉木纹阻燃饰面板,限选皖华肯蒂亚、山东林盾、福州福人或吉林露水河牌产品(原厂生产),环保标准达到国家E1级以上,三聚氰胺板厚度18mmE1级以上。
2. 板间连接使用铁三角;颜色:黄色。
3.本图机箱在右边,看样制作。



