部门编号:GSC2023040
项目内容:电脑桌86张
项目预算:2.408万元
主要技术指标要求:
序号 |
品名 |
数量 |
具体要求 |
1 |
计算机桌 |
86 |
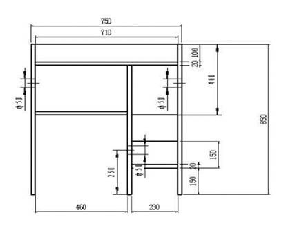
规格:730mm(长)*550mm(宽)*850mm(高) 1. 家具中所涉及到的板材,基材为刨花板,板面为三聚氰胺双面压光榉木纹阻燃饰面板,板材厚度18mm,颜色为银白色,耐压不变形,表面耐磨,正规厂家生产,环保标准达到国家E1级以上(须提供国家相关机构检测证明)。 2.桌面板间连接使用铁三角加固。 3. 计算机是两种款式,本图机箱在右边,另一款机箱在左边。数量:右边28张,左边58张。 4、看样制作。 下图为早期的图,现尺寸仅宽度缩小,730mm(长)*550mm(宽)*850mm(高),即机箱洞缩小2CM。 



|
供应商资质要求:
参加采购活动的供应商应当具备政府采购法第二十二条第一款规定的条件。
质保及服务要求:
1.要求正规渠道全新原厂行货(如有非原单配件拼凑情况,保留追究厂家及投标人责任的权利),合同签订后20个工作日内供方送货上门并根据学校要求进行安装调试,含安装、维修、保养。
2.产品质保三年,终身维护,质保期自甲方验收合格之日起开始计算。质保期内乙方提供免费上门服务,质保期外可收取成本费用。
3.乙方2小时内响应甲方的维修要求,12小时内解决,如超过12小时仍不能解决,由乙方在12小时内提供性能不低于故障产品的备用产品。
4.乙方义务中如有涉及第三方提供的,由乙方负责协调。
5.所有运输及安装调试和培训工作由乙方负责,所有费用由乙方承担,合同总价中已包含该部分费用。
6.如安装调试过程中涉及施工,乙方须文明施工,做到工完场地清。
付款方式:
供货人提供全额增值税结算发票,货物经我校验收合格后10个工作日后通过银行对公账户转账一次性支付。
报价方式及截止时间:
按附件所列报价单格式进行报价,报价应包含运输、安装调试、税费等所有相关费用,签填相应栏目随营业执照复印件、检测证明(均加盖公章)密封后加盖单位公章于2023年7月26日10:00前递交至连云港市苍梧路59号江苏海洋大学文渊楼213室,逾期报价无效。
评标办法:符合需方要求且报价最低的中标。
招标方联系方式:
投标联系人:李老师 联系电话:0518-85895262,13851285065
现场看样联系人:马老师13961377032
联系地址:连云港市苍梧路59号
江苏海洋大学购置电脑桌凳报价表
序号 |
产品名称 |
品牌型号 |
技术参数 |
数量 |
单价 |
总价 |
1 |
计算机桌 |
看样制作 |
规格:730mm(长)*550mm(宽)*850mm(高) 1. 家具中所涉及到的板材,基材为刨花板,板面为三聚氰胺双面压光榉木纹阻燃饰面板,耐压不变形,表面耐磨,环保标准达到国家E1级以上,三聚氰胺板厚度18mmE1级以上。颜色为银白色。 2.桌面板间连接使用铁三角加固。 3. 计算机是两种款式,本图机箱在右边,另一款机箱在左边。数量:右边28张,左边58张。 4、看样制作。 |
86 |
|
|
我公司保证以上所报产品能完全响应江苏海洋大学对于该项目的询价要求。
报价单位(盖章): 法人代表:
联系人:
联系地址及电话(手机):
Email: